New Town at St. Charles by Homes by Whittaker
Save
All
Create
Share
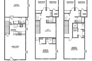
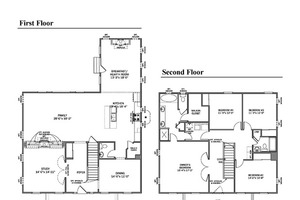
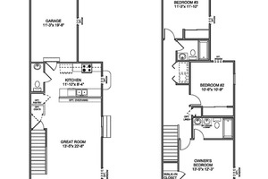
2-Story Plans
6 of 24
Previous Album
Next Album
×
Login to Your Hoodle Account
Remember me
Forgot your password
×
Create Your Hoodle Account
Sign up with Facebook
or
By clicking sign-up you indicate that you have read and agreed to the Terms of Service and Privacy Policy.